服務熱線
180-5003-0233

本實用新型涉及切割機械技術領域,具體為一種紙管生產用精切機的定位機構。
背景技術:
精切機又稱為紙管切管機是斜卷機的配套設備,它的主要目的是將紙管進行二次精確切割以達到客戶的滿意,目前有兩種比較主流的機型,一種是純機械的行星式紙管精切機,另一種是采用伺服定位的自動紙管精切機。
精切機使用時需要用到定位機構,但現有的精切機不設有定位機構,導致精切機在對紙管進行放入切割時,紙管會出現位移的現象,導致紙管的切割不夠精切和切口不平,從而降低了精切機的實用性。
技術實現要素:
本實用新型的目的在於提供一種紙管生產用精切機的定位機構,具備穩固定位的優點,解決了現有的精切機不設有定位機構,導致精切機在對紙管進行放入切割時,紙管會出現位移的現象,導致紙管的切割不夠精切和切口不平,從而降低了精切機的實用性的問題。
為實現上述目的,本實用新型提供如下技術方案:一種紙管生產用精切機的定位機構,包括精切機本體,所述精切機本體的右側設有傳動杆,所述傳動杆的內部豎向連接有豎板,所述傳動杆的右側設有推塊,所述推塊的左側固定連接有推杆,所述推杆的左側貫穿至豎板的左側固定連接有傳動塊,所述傳動塊的正麵通過第一轉軸活動連接有兩個第一活動板,所述第一活動板外側通過第二轉軸活動連接有滑塊,所述滑塊的右側與豎板滑動連接,所述滑塊的背麵通過第三轉軸活動連接有第二活動板,所述第二活動板的左側通過第四轉軸活動連接有第一固定塊,所述第一固定塊的左側固定連接有第二固定塊,所述第二固定塊與傳動杆的內壁滑動連接,所述傳動塊的左側固定連接有頂塊,所述頂塊的左側貫穿至第二固定塊的內部,所述頂塊的頂部與底部且位於第二固定塊的內部均滑動連接有頂杆,所述頂杆的外側均貫穿至傳動杆的外側。
優選的,所述推杆的表麵套設有限位塊,所述推杆的表麵套設有彈簧,所述彈簧的左側與限位塊固定連接,所述彈簧的右側與傳動杆的內壁固定連接。
優選的,所述第二固定塊的右側開設有開口,所述開口的寬度大於頂塊的寬度,所述開口與頂塊配合使用。
優選的,所述豎板的左側開設有兩個第一滑槽,所述滑塊與第一滑槽配合使用。
優選的,所述頂杆的左側固定連接有滑杆,所述第二固定塊內壁的左側開設有兩個第二滑槽,所述滑杆與第二滑槽配合使用。
優選的,所述精切機本體的頂部固定連接有氣缸,所述氣缸的頂部固定連接有卡塊,所述卡塊與推塊配合使用。
與現有技術相比,本實用新型的有益效果如下:
1、本實用新型通過設置精切機本體、傳動杆、豎板、推塊、推杆、傳動塊、第一活動板、滑塊、第二活動板、第一固定塊、第二固定塊、頂塊和頂杆配合使用,解決了現有的精切機不設有定位機構,導致精切機在對紙管進行放入切割時,紙管會出現位移的現象,導致紙管的切割不夠精切和切口不平,從而降低了精切機的實用性的問題,該紙管生產用精切機的定位機構,具備穩固定位的優點,方便了使用者使用,提高了精切機的實用性。
2、本實用新型通過限位塊的設置,能夠對推杆進行限位,防止其超過行程範圍,導致零件損壞,通過彈簧的設置,能夠使推杆得到良好的複位效果,通過開口的設置,能夠使頂塊穩定的在第二固定塊的內部移動,且對頂塊具備限位作用,防止其移動時產生偏移,通過第一滑槽的設置,能夠使滑塊穩定的在豎板的表麵滑動,且限製了滑塊的最大行程,防止零件損壞,通過滑杆和第二滑槽的設置,能夠對頂杆起到固定和支撐的作用,且對其具備限位作用,防止其左右移動,通過氣缸和卡塊的設置,能夠對推塊進入限位,防止其在工作時發生鬆動的現象。
附圖說明
圖1為本實用新型結構示意圖;
圖2為本實用新型結構傳動杆剖視圖;
圖3為本實用新型結構圖2中a的局部放大圖。
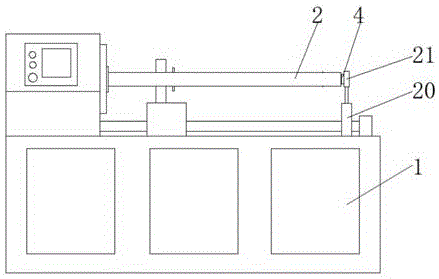
圖中:1精切機本體、2傳動杆、3豎板、4推塊、5推杆、6傳動塊、7第一活動板、8滑塊、9第二活動板、10第一固定塊、11第二固定塊、12頂塊、13頂杆、14限位塊、15彈簧、16開口、17第一滑槽、18滑杆、19第二滑槽、20氣缸、21卡塊。
具體實施方式
下麵將結合本實用新型實施例中的附圖,對本實用新型實施例中的技術方案進行清楚、完整地描述,顯然,所描述的實施例僅僅是本實用新型一部分實施例,而不是全部的實施例。基於本實用新型中的實施例,本領域普通技術人員在沒有做出創造性勞動前提下所獲得的所有其他實施例,都屬於本實用新型保護的範圍。
請參閱圖1-3,一種紙管生產用精切機的定位機構,包括精切機本體1,精切機本體1的右側設有傳動杆2,傳動杆2的內部豎向連接有豎板3,傳動杆2的右側設有推塊4,推杆5的表麵套設有限位塊14,推杆5的表麵套設有彈簧15,彈簧15的左側與限位塊14固定連接,彈簧15的右側與傳動杆2的內壁固定連接,通過限位塊14的設置,能夠對推杆5進行限位,防止其超過行程範圍,導致零件損壞,通過彈簧15的設置,能夠使推杆5得到良好的複位效果,精切機本體1的頂部固定連接有氣缸20,氣缸20的頂部固定連接有卡塊21,卡塊21與推塊4配合使用,通過氣缸20和卡塊21的設置,能夠對推塊4進入限位,防止其在工作時發生鬆動的現象,推塊4的左側固定連接有推杆5,推杆5的左側貫穿至豎板3的左側固定連接有傳動塊6,傳動塊6的正麵通過第一轉軸活動連接有兩個第一活動板7,第一活動板7外側通過第二轉軸活動連接有滑塊8,滑塊8的右側與豎板3滑動連接,豎板3的左側開設有兩個第一滑槽17,滑塊8與第一滑槽17配合使用,通過第一滑槽17的設置,能夠使滑塊8穩定的在豎板3的表麵滑動,且限製了滑塊8的最大行程,防止零件損壞,滑塊8的背麵通過第三轉軸活動連接有第二活動板9,第二活動板9的左側通過第四轉軸活動連接有第一固定塊10,第一固定塊10的左側固定連接有第二固定塊11,第二固定塊11與傳動杆2的內壁滑動連接,傳動塊6的左側固定連接有頂塊12,頂塊12的左側貫穿至第二固定塊11的內部,第二固定塊11的右側開設有開口16,開口16的寬度大於頂塊12的寬度,開口16與頂塊12配合使用,通過開口16的設置,能夠使頂塊12穩定的在第二固定塊11的內部移動,且對頂塊12具備限位作用,防止其移動時產生偏移,頂塊12的頂部與底部且位於第二固定塊11的內部均滑動連接有頂杆13,頂杆13的左側固定連接有滑杆18,第二固定塊11內壁的左側開設有兩個第二滑槽19,滑杆18與第二滑槽19配合使用,通過滑杆18和第二滑槽19的設置,能夠對頂杆13起到固定和支撐的作用,且對其具備限位作用,防止其左右移動,頂杆13的外側均貫穿至傳動杆2的外側。
使用時,推動推塊4向左移動,推塊4帶動推杆5向左移動,通過限位塊14進行限位,推杆5帶動傳動塊6向左移動,傳動塊6通過第一活動板7轉動,第一活動板7通過第二轉軸帶動滑塊8在第一滑槽17的內部向內滑動,滑塊8通過第三轉軸帶動第二活動板9轉動,第二活動板9帶動第一固定塊10向左移動,第一固定塊10帶動第二固定塊11向左移動,移動到適合位置時,傳動塊6同時帶動頂塊12進入第二固定塊11的內部,頂塊12將頂杆13頂出,從而對紙管進行定位,啟動氣缸20,氣缸20帶動卡塊21向上移動,對推塊4進行限位。
綜上所述:該紙管生產用精切機的定位機構,通過精切機本體1、傳動杆2、豎板3、推塊4、推杆5、傳動塊6、第一活動板7、滑塊8、第二活動板9、第一固定塊10、第二固定塊11、頂塊12和頂杆13配合使用,解決了現有的精切機不設有定位機構,導致精切機在對紙管進行放入切割時,紙管會出現位移的現象,導致紙管的切割不夠精切和切口不平,從而降低了精切機的實用性的問題。
需要說明的是,在本文中,諸如第一和第二等之類的關係術語僅僅用來將一個實體或者操作與另一個實體或操作區分開來,而不一定要求或者暗示這些實體或操作之間存在任何這種實際的關係或者順序。而且,術語“包括”、“包含”或者其任何其他變體意在涵蓋非排他性的包含,從而使得包括一係列要素的過程、方法、物品或者設備不僅包括那些要素,而且還包括沒有明確列出的其他要素,或者是還包括為這種過程、方法、物品或者設備所固有的要素。
盡管已經示出和描述了本實用新型的實施例,對於本領域的普通技術人員而言,可以理解在不脫離本實用新型的原理和精神的情況下可以對這些實施例進行多種變化、修改、替換和變型,本實用新型的範圍由所附權利要求及其等同物限定。
技術特征:
1.一種紙管生產用精切機的定位機構,包括精切機本體(1),其特征在於:所述精切機本體(1)的右側設有傳動杆(2),所述傳動杆(2)的內部豎向連接有豎板(3),所述傳動杆(2)的右側設有推塊(4),所述推塊(4)的左側固定連接有推杆(5),所述推杆(5)的左側貫穿至豎板(3)的左側固定連接有傳動塊(6),所述傳動塊(6)的正麵通過第一轉軸活動連接有兩個第一活動板(7),所述第一活動板(7)外側通過第二轉軸活動連接有滑塊(8),所述滑塊(8)的右側與豎板(3)滑動連接,所述滑塊(8)的背麵通過第三轉軸活動連接有第二活動板(9),所述第二活動板(9)的左側通過第四轉軸活動連接有第一固定塊(10),所述第一固定塊(10)的左側固定連接有第二固定塊(11),所述第二固定塊(11)與傳動杆(2)的內壁滑動連接,所述傳動塊(6)的左側固定連接有頂塊(12),所述頂塊(12)的左側貫穿至第二固定塊(11)的內部,所述頂塊(12)的頂部與底部且位於第二固定塊(11)的內部均滑動連接有頂杆(13),所述頂杆(13)的外側均貫穿至傳動杆(2)的外側。
2.根據權利要求1所述的一種紙管生產用精切機的定位機構,其特征在於:所述推杆(5)的表麵套設有限位塊(14),所述推杆(5)的表麵套設有彈簧(15),所述彈簧(15)的左側與限位塊(14)固定連接,所述彈簧(15)的右側與傳動杆(2)的內壁固定連接。
3.根據權利要求1所述的一種紙管生產用精切機的定位機構,其特征在於:所述第二固定塊(11)的右側開設有開口(16),所述開口(16)的寬度大於頂塊(12)的寬度,所述開口(16)與頂塊(12)配合使用。
4.根據權利要求1所述的一種紙管生產用精切機的定位機構,其特征在於:所述豎板(3)的左側開設有兩個第一滑槽(17),所述滑塊(8)與第一滑槽(17)配合使用。
5.根據權利要求1所述的一種紙管生產用精切機的定位機構,其特征在於:所述頂杆(13)的左側固定連接有滑杆(18),所述第二固定塊(11)內壁的左側開設有兩個第二滑槽(19),所述滑杆(18)與第二滑槽(19)配合使用。
6.根據權利要求1所述的一種紙管生產用精切機的定位機構,其特征在於:所述精切機本體(1)的頂部固定連接有氣缸(20),所述氣缸(20)的頂部固定連接有卡塊(21),所述卡塊(21)與推塊(4)配合使用。
技術總結
本實用新型公開了一種紙管生產用精切機的定位機構,包括精切機本體,精切機本體的右側設有傳動杆,傳動杆的內部豎向連接有豎板,傳動杆的右側設有推塊,推塊的左側固定連接有推杆,推杆的左側貫穿至豎板的左側固定連接有傳動塊,傳動塊的正麵通過第一轉軸活動連接有兩個第一活動板。本實用新型通過設置精切機本體、傳動杆、豎板、推塊、推杆、傳動塊、第一活動板、滑塊、第二活動板、第一固定塊、第二固定塊、頂塊和頂杆配合使用,解決了現有的精切機不設有定位機構,導致精切機在對紙管進行放入切割時,紙管會出現位移的現象,導致紙管的切割不夠精切和切口不平,從而降低了精切機的實用性的問題。
技術研發人員:黃秀霞
受保護的技術使用者:泉州市泉港頂新日用品有限公司
技術研發日:2019.09.02
技術公布日:2020.10.27